THIẾT KẾ & THI CÔNG SÂN VƯỜN – BỂ CÁ KOI

Nhà Em Trứ – Duy Tiên – Hà Nam

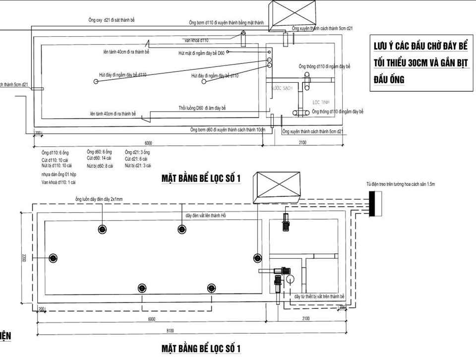
Một không gian sân vườn đẹp không chỉ để ngắm mà còn là nơi thư giãn, cân bằng phong thủy và nâng tầm giá trị ngôi nhà. Công trình bể cá Koi tại nhà anh Em Trứ – Duy Tiên – Hà Nam là một trong những dự án được chúng tôi thiết kế và thi công trọn gói từ A–Z, đảm bảo đúng kỹ thuật – chuẩn hệ lọc – bền vững lâu dài.